Если цена в объявлении изменится, мы сразу сообщим вам об этом на электронную почту.
Нажимая «Подписаться», вы соглашаетесь с правилами.
продам 4-к, Псковская, 48 корп. 29 700 000 ₽
12 авг 2025
Дата публикации объявления
Обн. вчера
Дата обновления объявления
5
Количество просмотров (+ просмотры за сегодня)
Спецпредложение
Турбо x8
118 293 ₽/м²
Чистая продажа
Термин "Чистая продажа" означает, что в квартире никто не прописан или
есть куда выписаться и вывезти вещи. Это лучший вариант для покупателя.
Вероятность срыва сделки минимальна.
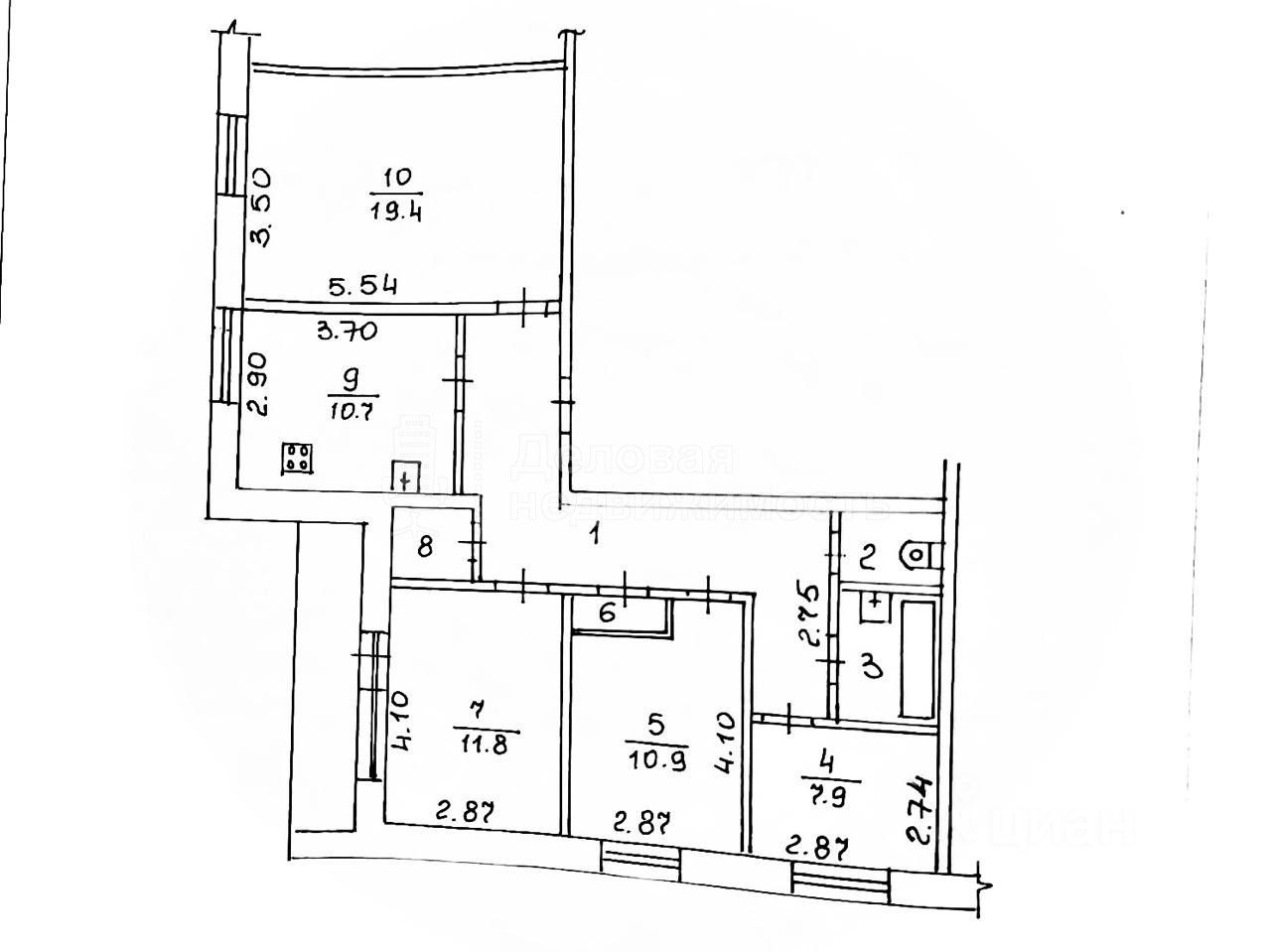
Продается 4х-комнатная квартира в Псковском микрорайоне Великого Новгорода!
Удачная планировка. Все комнаты изолированы, идеально подойдет для семьи с детьми или тех, кто ценит личное пространство.
Общая площадь - 82 кв.м.
Жилая площадь - 50 кв.м. (19,4 кв.м., 11,8 кв.м., 10,9 кв.м. и 7,9 кв.м.) Удобно разместить спальни, детскую, кабинет.
Просторная кухня - 10,7 кв.м. правильной формы, легко разделить на рабочую и обеденные зоны.
Квартира в хорошем состоянии. Частично сделан свежий ремонт. На окнах везде стеклопакеты. Санузел раздельный, в кафеле. Установлены счетчики на воду и электричество. Вместительная гардеробная.
Просторная прихожая, есть место для шкафов и хранения.
Продается 4х-комнатная квартира в Псковском микрорайоне Великого Новгорода!
Удачная планировка. Все комнаты изолированы, идеально подойдет для семьи с детьми или тех, кто ценит личное пространство.
Общая площадь - 82 кв.м.
Жилая площадь - 50 кв.м. (19,4 кв.м., 11,8 кв.м., 10,9 кв.м. и 7,9 кв.м.) Удобно разместить спальни, детскую, кабинет.
Просторная кухня - 10,7 кв.м. правильной формы, легко разделить на рабочую и обеденные зоны.
Квартира в хорошем состоянии. Частично сделан свежий ремонт. На окнах везде стеклопакеты. Санузел раздельный, в кафеле. Установлены счетчики на воду и электричество. Вместительная гардеробная.
Просторная прихожая, есть место для шкафов и хранения.
Мебель остается по договоренности. Квартира теплая.
Окна выходят юго-запад, проблем с парковкой нет. Чистый подъезд, хорошие соседи.
Отличный район. Вся инфраструктура в шаговой доступности: детский садик во дворе, школа в 3х минутах ходьбы, кафе, рестораны, аптеки, продуктовые магазины, спорткомплекс ''Манеж'', медицинские учреждения, пункты выдачи, остановки общественного транспорта. Удобная транспортная доступность.
Квартира без перепланировок, подходит под ипотеку и маткапитал.
Полное юридическое сопровождение.
Не упустите шанс приобрести идеальный вариант для вашей семьи! Звоните!
Просмотр в удобное для Вас время, по предварительному согласованию.
____________________________________
АН Деловая недвижимость - действующий участник гильдии риэлторов Великого Новгорода и НО