Складское помещение
Связи, 17 Показать на карте
Связи, 17 Показать на карте
Боровичи
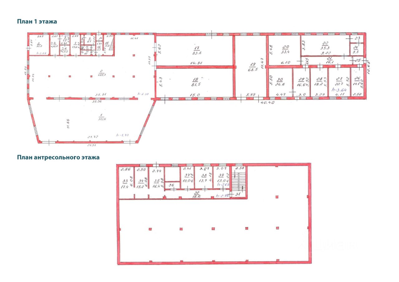
Продаю здание склада с административным корпусом площадью 1533 кв.м и здание склада площадью 445 кв.м. ,расположенных в г.Боровичи Новгородской области на ул.Связи 17 на змельном участке площадью 0,81 га.Земли населенных пунктов,зона П1.2я линия реки Мста.Расстояние до г.Москва 450 км,до Спб 280 км..Материал стен-кирпич,стены -сэндвич-панели ,кирпич.перекрытия -железобетон,пол-бетон ,стяжка 30 см,потолок -плиты перекрытия ЦСП.Высота потолков в здании склада 5,7 м- 6,3 м.На антресольном этаже 2,9 м.В здании второго склада 3 метра 3 м.Территория асфальтирована.Эл-во 95 квт,возможность увеличения,две котельных автономных(одна временно законсервирована),вода,канализация,круглосуточная охрана,видеонаблюдение,телефон,интернет,пожарный водоём.тыс.рублей.Площадь изначального земельного участка 2,1 га.Межевание с последующей постановкой на кадастровый учёт после внесения задатка 5- 10% от стоимости продажи.Срок-1-1,5 месяца.Стоимость продажи 35 млн.рублей
1980 м2
- Показать контакты
- Добавить в избранное
1980 м2
35 000 000
17 677 /м2
